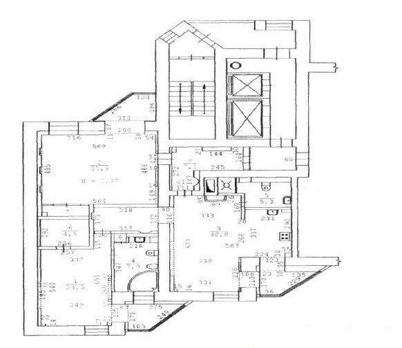
Продажа 3х-комнатной квартиры
- 119 м²
- Площадь
- 60 м²
- Жилая площадь
- 15 м²
- Площадь кухни
- 10/16
- Этаж
16 000 000 ₽
134 794 ₽ за м²
ID объявления 12154221
Поделиться
Добавить в избранное
Продам просторную, уютную, светлую трехкомнатную квартиру в центре города Екатеринбурга, в кирпичном доме.
Достоинством квартиры является ее уникальное расположение. На сегодня это одна из лучших локаций в городе. Рядом Харитоновский парк, Космос, Дворец игровых видов спорта, Театр юного зрителя, Храм-на-крови , остановки общественного транспорта , магазины , все в шаговой доступности.В квартире сделан очень качественный ремонт из дорогостоящих материалов . Новому собственнику остается кухонный гарнитур со встроенной бытовой техникой , встроенный шкаф купе, остальное по договоренности за отдельную плату .
В доме свое ТСЖ , закрытая территория и видеонаблюдение .
Прекрасный вид из окон на центр города ! Чистая продажа, ипотека возможна , один взрослый собственник . Обременений нет. Быстрый выход на сделку !!!!
ID объекта в нашей базе: 9043
Дата обновления: 21 октября 2025