Продажа 2х-комнатной квартиры
- 89 м²
- Площадь
- 62 м²
- Жилая площадь
- 22 м²
- Площадь кухни
- 5/10
- Этаж
20 800 000 ₽
233 446 ₽ за м²
ID объявления 12403906
Поделиться
Добавить в избранное
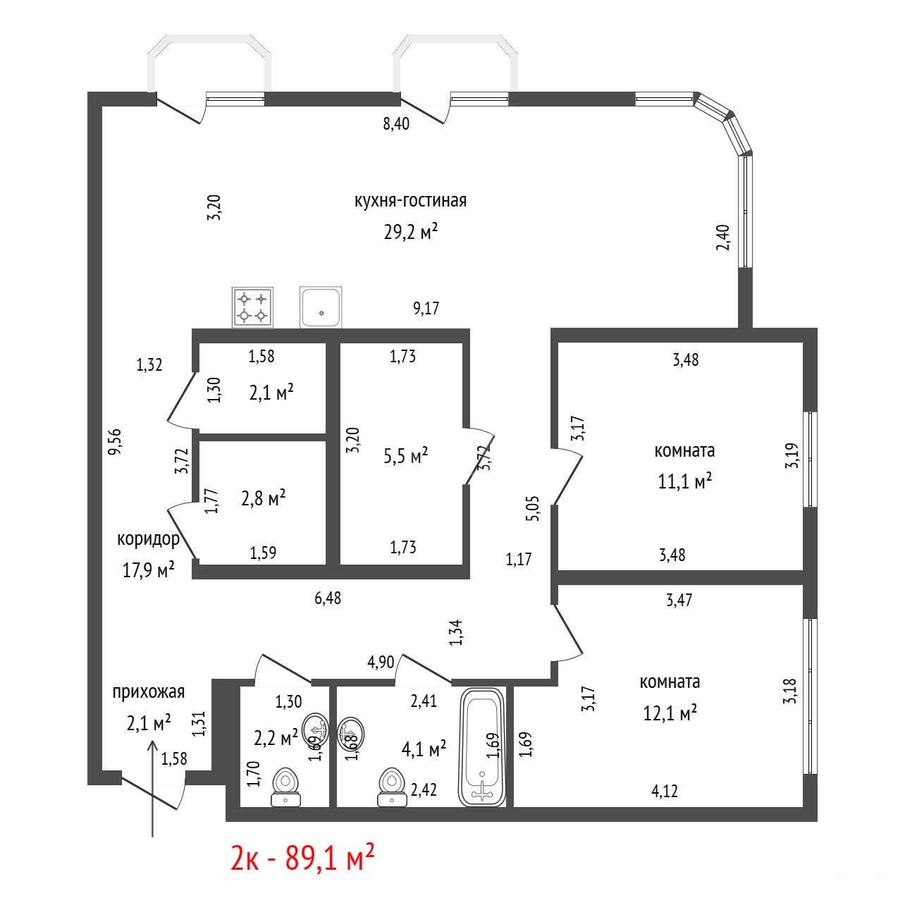
Квартира расположена в первой очереди жилого комплекса «На Некрасова», известного своим запоминающимся архитектурным решением. Объект предлагает одну из лучших планировок в комплексе: просторную кухню-гостиную площадью 29, 2 кв. м, две изолированные спальни, два санузла, гардеробную и кладовую. Ключевой особенностью является угловое панорамное остекление, обеспечивающее видовые характеристики и обилие естественного света. Два французских балкона дополняют образ. Квартира приобреталась у застройщика, один собственника, и в ней уже выполнен значительный объем качественного ремонта, что позволяет завершить отделку в ближайшее время. Локация отличается исключительной транспортной доступностью: станция метро «Динамо» находится в 5 минутах пешком. В такой же пешей доступности — прогулочная набережная, а перед домом расположен уютный сквер. Это предложение сочетает в себе продуманную современную планировку, выгодное расположение и готовность к комфортному проживанию.
Код пользователя: 270006
Номер в базе: 10866168
Дата обновления: 15 февраля 2026