Продажа 2х-комнатной квартиры

80 м²
Площадь
58 м²
Жилая площадь
17.1 м²
Площадь кухни
13/16
Этаж

17 200 000 ₽

214 732 ₽ за м²

ID объявления 12422456

Поделиться

Добавить в избранное



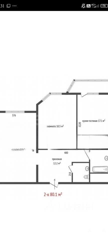
Продаётся просторная двухкомнатная квартира в современном кирпичном доме, что обеспечивает отличную звукоизоляцию. 2008 года постройки. Общая площадь составляет 80, 1 кв. м, из которых 44 кв. м — жилая. Квартира находится на 13 этаже 16-этажного дома, а окна выходят во двор, что обеспечивает тишину и уют. Высота потолков составляет 2.9 метра.

В квартире сделан качественный евроремонт, что позволяет сразу заехать и жить без дополнительных затрат. Просторная кухня площадью 16, 9 кв. м оборудована кухонным гарнитуром со встроенной техникой (холодильник, посудомоечная машина, вытяжка), а также микроволновой печью и мебелью. В ванной комнате современная стиральная машина автомат. Удобная планировка позволяет комфортно разместиться семьеквартира. Санузел раздельный, что добавляет удобства в повседневной жизни. Имеется лоджия, где можно организовать зону для отдыха.

Дом ухоженный, с пандусом для удобного доступа, что особенно важно для семей с маленькими детьми и людей с ограниченными возможностями.

Инфраструктура района хорошо развита. Рядом находятся школы, детские сады, а также магазины, ТЦ "Мегаполис", что делает этот район удобным для жизни с детьми. До метро "Чкаловская" всего 6 минут пешком, что позволяет быстро добраться до центра города и других районов.

Продажа от собственника, что упрощает процесс сделки. Возможна ипотека. Квартира юридически чистая, без обременений. Удобные условия сделки гарантируют безопасность и комфорт.


Код пользователя: 198041
Номер в базе: 10913513

Дата обновления: 28 января 2026

Квартира Евроремонтом От собственника Ипотека