Продажа торговой площади
22 000 000 ₽
156 362 ₽ за м²
- 141 м²
- Площадь
- 1/5
- Этаж
Это объявление снято с публикации.
Если это ваше объявление, восстановите его в личном кабинете или подайте новое.
В ином случае, вы можете перейти на главную или поискать другие предложения.
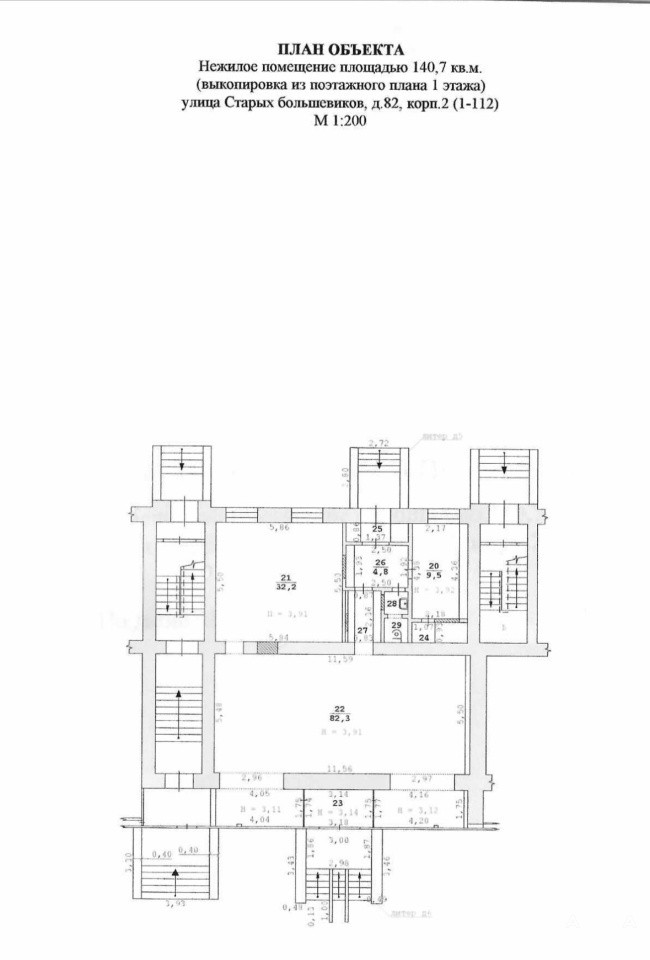
ГАБ, помещение с якорным арендатором (Бристоль), готовый арендный бизнес и стабильный доход. Арендная плата 120 т.р.(без НДС). КУ оплачивает арендатор, договор от 29.07.2022 года на 7 лет.Помещение по документам нежилое. Один собственник. Чистая продажа.Локация:Помещение расположено в центре Уралмаша. 1 линия, отдельный вход.Характеристика:Общая площадь - 140.7Этаж - 1/5Электрическая мощность - 30Ремонт - типовойПланировка - открытаяВысота потолков - 4 метраОстекление - стандартноеСанузел в помещенииПарковка на 20 м/местМесто под вывеску на фасадеОтделка:Стены - под покраскуПотолок - армстронгПол - плиткаЗвоните, с удовольствием отвечу на ваши вопросы и договоримся на просмотр!
ID объекта в нашей базе: 9285
Дата обновления: 2 декабря 2025