Продажа торговой площади
54 000 000 ₽
108 044 ₽ за м²
- 500 м²
- Площадь
- 1/2
- Этаж
ЛОКАЦИЯ:
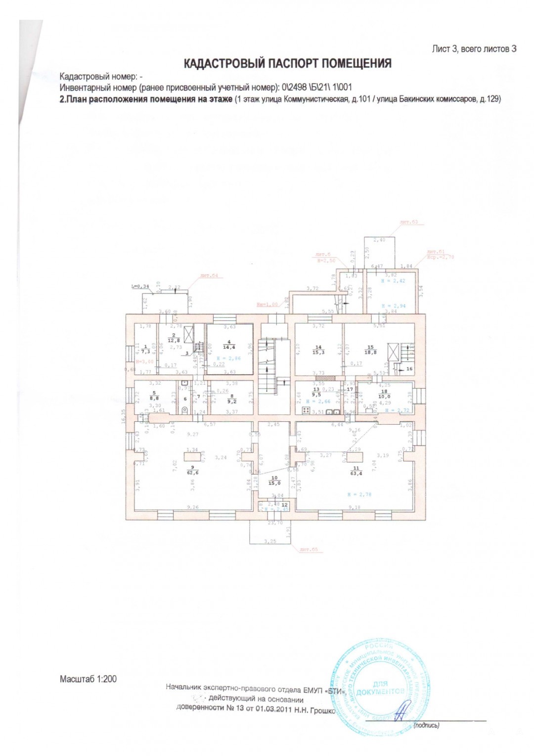
Уралмаш. Угол , пересечение улиц Коммунистическая и Бакинских комиссаров.
ХАРАКТЕРИСТИКА:
Этаж 1/2 и подвал
Площадь общая 499, 8 м2
Отдельный вход с ул. Коммунистическая
Высота потолка 3, 0 м
Мощность эл.эн. 30 кВт
Большая наземная парковка
Большое место для вывески на фасаде
Сдано в долгосрочную аренду ТС "Бристоль", "Ермолино", "Мясная лавка"
Рядом остановка общественного транспорта
Звоните. Все покажем и расскажем
Арт. 129612086
Дата обновления: 6 февраля 2026