Продажа помещения свободного назначения
Ботаническая, 13 мин
Чкаловская, 32 мин
23 330 000 ₽
208 118 ₽ за м²
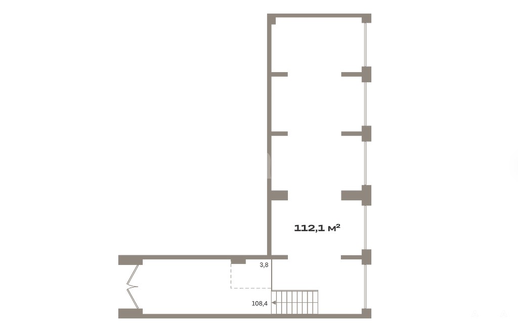
- 112 м²
- Площадь
- 1/18
- Этаж
Продается коммерческое помещение площадью 112, 1 м² на первом этаже нового жилого комплекса «Шишимская горка». Объект приобретается напрямую от застройщика, что гарантирует прозрачность сделки и отсутствие дополнительных комиссий.
Ключевое преимущество — прямое уличное расположение с отдельным входом и готовым местом под вывеску, обеспечивающее максимальную видимость и легкую доступность для клиентов.
Помещение обладает высокими потолками от 3 метров и панорамным остеклением, наполняющим пространство естественным светом. Выполнена чистовая отделка: цементно-песчаная стяжка пола, подведенные инженерные коммуникации, включая водоотведение, канализацию, электричество, радиаторы отопления, приборы учета и отдельный вентиляционный канал.
Расположение в динамично развивающемся районе обеспечивает стабильно высокую проходимость как за счет городского трафика, так и за счет растущего резидентного потока жителей комплекса. Это создает идеальные условия для размещения розничного магазина, офиса предоставления услуг, кофейни, салона красоты или другого формата бизнеса.
Код пользователя: 1245783804
Номер в базе: 9836457
Дата обновления: 15 сентября 2025