Продажа помещения свободного назначения
11 800 000 ₽
105 358 ₽ за м²
- 112 м²
- Площадь
- 1/6
- Этаж
Арт. 120970726
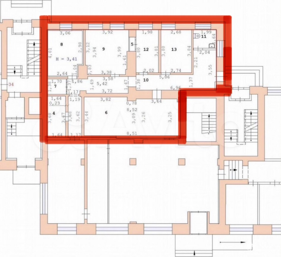
Универсальное помещение с отдельным входом. Потолки 3, 5 метра. Ремонт – полностью готов для работы без дополнительных вложений. 15 кВт, транспортная доступность.Есть арендатор.
ХАРАКТЕРИСТИКА:
МАП-100000 р
При ежегодной индексации 10 % окупаемость составит 7, 5 лет
Метро "Уралмаш" в пешей доступности
Возможность размещения рекламы на фасаде
Электрическая мощность 15кВт
Планировка кабинетная, с возможностью перепланировки
Остекление большие окна
Потолки высотой 3.5 м.
Охранно-пожарная сигнализация
Видеонаблюдение
Санузел в помещении
ДОПОЛНИТЕЛЬНЫЕ ВОЗМОЖНОСТИ:
Помещение универсальное, подойдет для торговли, офиса, услуг.
Возможна продажа как готовый арендный бизнес.
Возможна перепланировка.
Рассмотрим встречные предложения.
Прямой договор с собственником!
Без комиссии!
Дата обновления: 18 октября 2025