Аренда торговой площади

Свердловская обл, Екатеринбург, ул. Якова Свердлова,32б

70 000 ₽/мес

1 229 ₽ за м²/мес.

57 м²
Площадь
1/32
Этаж

Поделиться

Добавить в избранное

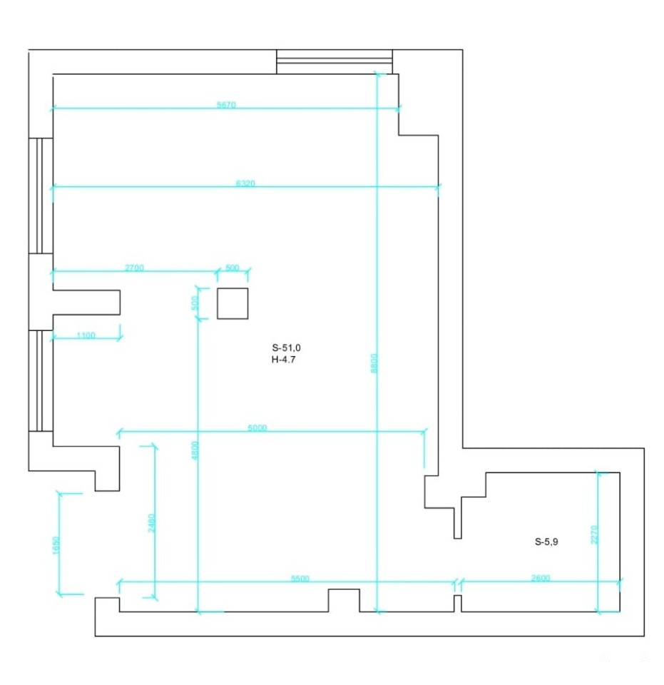
ТОРГОВОЕ ПОМЕЩЕНИЕ, 57 м2! В ЖК «ЕКАТЕРИНИНСКИЙ ПАРК ». В помещении 4 окна. Район густонаселенный, дома от 5 до 32 этажей, высокая платежеспособность населения. Парковка наземная.
ЛОКАЦИЯ:
Трафиковый район города с высокой транспортной и пешеходной доступностью
Остановка общественного транспорта «Азина»
ХАРАКТЕРИСТИКА:
Общая площадь 57 м2
Этаж 1 / 32
Планировка открытая
Потолки высотой 5 м.
Мощность 11 кВт
Санузел в помещении
ДОПОЛНИТЕЛЬНЫЕ ВОЗМОЖНОСТИ:
Помещение универсальное, подойдет как для офиса, так и для услуг.
Цена указана на льготных условиях или рассматриваем Аредные каникулы на период подготовки помещения.
Рассмотрим встречные предложения.
ID объекта в нашей базе: 9083

Дата обновления: 5 ноября 2025

Помещение Торгово-офисное