170 000 ₽/мес

512 ₽ за м²/мес.

333 м²
Площадь
3/3
Этаж

Это объявление снято с публикации.

Если это ваше объявление, восстановите его в личном кабинете или подайте новое.

В ином случае, вы можете перейти на главную или поискать другие предложения.

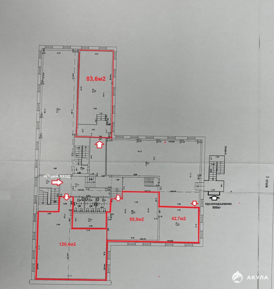
Помещение 332, 5м2, состоящее из 4-х помещений разной площади, потолки от 4-7метров, под мелкое производство, швейное производство, услуги, офис, склад. 3 этаж административного здание. Грузоподъемник 500кг, санузлы на этаже. Здание под охраной. Общий вход. Есть возможность арендовать часть помещений. Отопление, вода включены в стоимость ставки.ЛОКАЦИЯ: остановка транспорта КраснофлотцевСоседи в здании: офисы, швейная фабрика Морозовых, Уральская машиностроительная компания, ПроМишени, ВнешЭкономСбыт и др.Заезд через шлагбаум со стороны улиц Старых Большевиков, ШефскаяВ шаговой доступности - магазин Чижик, две столовые для сотрудников.ХАРАКТЕРИСТИКА ОБЪЕКТА:3 этаж/3 этажей, общая площадь 332, 5м2 = (120м2+43м2+86м2+90м2)Помещения свободной планировки, возможно зонированиеЭлектрическая мощность 30 кВтПотолки высотой от 3, 8 - 7 метровОхранно-пожарная сигнализацияГрузоподъемник 500кгСанузел на этажеВход общийДОПОЛНИТЕЛЬНАЯ ИНФОРМАЦИЯ:Арендная ставка – 600р. в месяц за м2 (+НДС 5%). Договор с ООООбеспечительный платеж в размере одного месячного платежаКоммунальные платежи (электричество) оплачиваются дополнительноЕсть возможность арендовать часть помещений.
ID объекта в нашей базе: 9248

Дата обновления: 24 декабря 2025

Помещение Производственно-офисное Производственно-складское