Аренда офисного помещения
937 400 ₽/мес
2 000 ₽ за м²/мес.
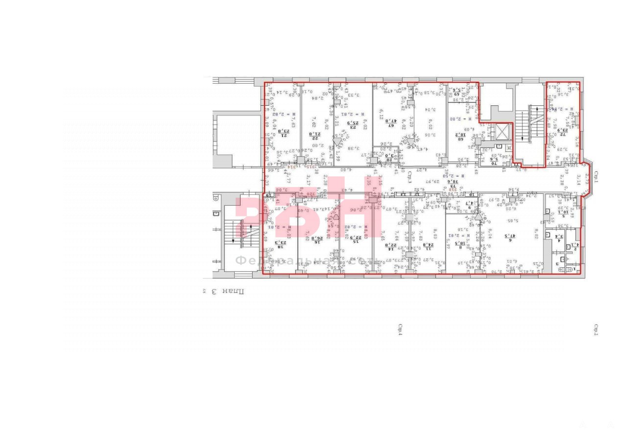
- 469 м²
- Площадь
- 3/7
- Этаж
Это объявление снято с публикации.
Если это ваше объявление, восстановите его в личном кабинете или подайте новое.
В ином случае, вы можете перейти на главную или поискать другие предложения.
Предлагаю в аренду офисное помещение- площадь 468, 7 кв м
Без комиссии для покупателей.
- Расположено на 3 этаже административного здания — это самый центр , в пяти минутах метро Площадь 1905 г.
-Хорошая транспортная доступность, находится рядом с остановками наземного транспорта( метро Площадь 1905 г, трамвай, автобус). Остановки: Площадь 1905 г, Маршала Жукова, Антона Валека.
-Кабинетная планировка
-Высота потолков - 2, 8м
-Косметический ремонт
-Приточно-вытяжная вентиляция, кондиционер в каждом кабинете
-Есть лифт
-Охрана на входе, время работы с 08.00-20.00 далее по согласованию с охраной
Помещение подойдет под офис компании, образовательный центр, медцентр, поликлинику и др.
Стоимость: 937 400 р (2000 р за кв.м)
Плюс коммунальные платежи.
Более подробную информацию уточняйте у наших специалистов.
------------------------------------------------------
"Регион Бизнес Недвижимость".
Коммерческая недвижимость .
Без комиссии для покупателей.
Арт. 69431136
Дата обновления: 9 января 2026