Продажа 1-комнатной квартиры
Свердловская область, Екатеринбург, улица Мусоргского, 34
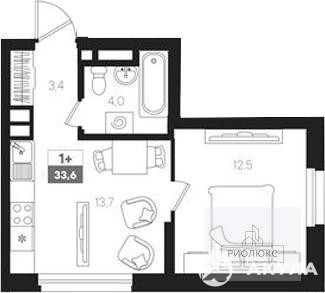
- 34 м²
- Площадь
- 12.5 м²
- Жилая площадь
- 13.7 м²
- Площадь кухни
- 3/21
- Этаж
4 490 000 ₽
133 631 ₽ за м²
ID объявления 12612482
Поделиться
Добавить в избранное
id:49227.
Представляем уютную квартиру-новостройку, где современный комфорт встречается с продуманной планировкой.
Общая площадь 33, 6 м² гармонично распределена между светлыми жилыми зонами и просторной кухней.
Сердцем этого жилья стала кухня площадью 13, 7 м², которая открывает безграничные возможности для обустройства — от утренних чаепитий у окна до дружеских вечерних посиделок.
Уютную жилую зону площадью 12, 5 м² легко превратить в личное убежище для отдыха или творческое пространство.
Квартира расположена на третьем этаже современного 21-этажного дома, что обеспечивает прекрасный баланс — вы находитесь выше городской суеты, но при этом в удобной доступности от входа.
Панорамные окна наполняют интерьер естественным светом и открывают вид на динамично развивающийся район. Это идеальное решение для тех, кто ценит стиль, функциональность и преимущества жизни в только что сданном доме с новой инфраструктурой.
Дата обновления: 19 марта 2026