Продажа 1-комнатной квартиры

33 м²
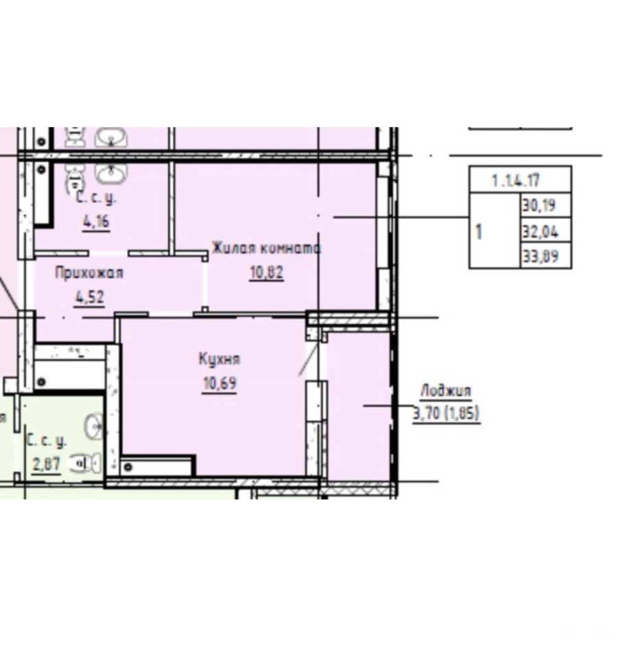
Площадь
11 м²
Жилая площадь
11 м²
Площадь кухни
15/25
Этаж

5 950 000 ₽

180 304 ₽ за м²

ID объявления 12334520

Поделиться

Добавить в избранное

Вид на Верх-Исетский пруд. Ваш личный «панорамный кинотеатр» с вашей лоджии.Продаётся квартира в новой очереди ЖК «Русь» с одним из лучших видов в городе.Представьте: каждое утро вы встречаете чашкой кофе, глядя на гладь Верх-Исетского пруда. Это не просто квартира, это место силы прямо в центре городской жизни.Почему здесь захочется жить сразу:· Вид, который не надоест. Водная гладь и простор вместо стен соседнего дома.· Квартира под ваш дизайн. Выполнена качественная отделка под чистовую — берите и воплощайте мечту, не тратя месяцы на выравнивание стен и стяжку.· Жизнь без спешки. Закрытый двор без машин с прогулочной аллеей и сквером. Территория разделена на зоны: можно пойти на шумную детскую площадку или уединиться в тихой зоне отдыха.· Продуманный дом. Сквозные проходы с улицы во двор, просторные тамбуры, чтобы было удобно с коляской или велосипедом. В холлах — стильный ремонт под дерево и камень, мягкие пуфы, тёплый свет.Квартира ждёт своего хозяина. Приезжайте смотреть на рассвет над прудом! Звоните в любое время. Пишите, звоните. Один взрослый собственник. Никто не прописан. Без обременений.
ID объекта в нашей базе: 639

Дата обновления: 3 апреля 2026

Квартира От собственника