Продажа 2х-комнатной квартиры
Динамо, 36 мин
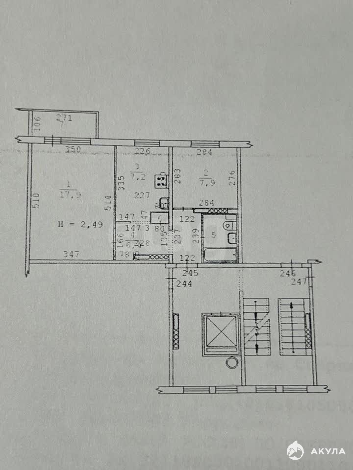
- 43 м²
- Площадь
- 28.5 м²
- Жилая площадь
- 7.2 м²
- Площадь кухни
- 8/9
- Этаж
4 650 000 ₽
108 645 ₽ за м²
ID объявления 12491508
Поделиться
Добавить в избранное
Продается двухкомнатная квартира с полной меблировкой в тихом, озелененном дворе на Новой Сортировке. Объект расположен в глубине квартала, что гарантирует спокойную атмосферу и отсутствие уличного шума. Квартира находится в отличном состоянии: установлены пластиковые окна, надежная входная дверь, новые счетчики и трубы. Высокая энергоэффективность позволяет сохранять тепло зимой, а кондиционер обеспечивает комфорт в летний период. Планировка включает две изолированные комнаты — просторную светлую гостиную и уютную, функциональную детскую, совмещенный санузел, а также вместительный балкон. Дополнительным преимуществом является наличие отдельной железной двери в общем коридоре, создающей удобное техническое пространство для хранения.
Квартира продается свободной от любых обременений: собственник один, ипотека и материнский капитал не использовались, прописанных лиц нет. В сделку включена практически вся мебель и техника: кухонный гарнитур с плитой и холодильником, диван, шкаф-купе, детский гарнитур, компьютерный стол и другие предметы обстановки. Это готовое решение для комфортного заселения, оптимально подходящее для молодой семьи, ценящей тишину, развитую инфраструктуру и безупречный юридический статус объекта.
Код пользователя: 196442
Номер в базе: 11790771
Дата обновления: 17 февраля 2026