- 44 м²
- Площадь
- 29 м²
- Жилая площадь
- 6 м²
- Площадь кухни
- 4/5
- Этаж
3 450 000 ₽
78 410 ₽ за м²
ID объявления 12135317
Поделиться
Добавить в избранное
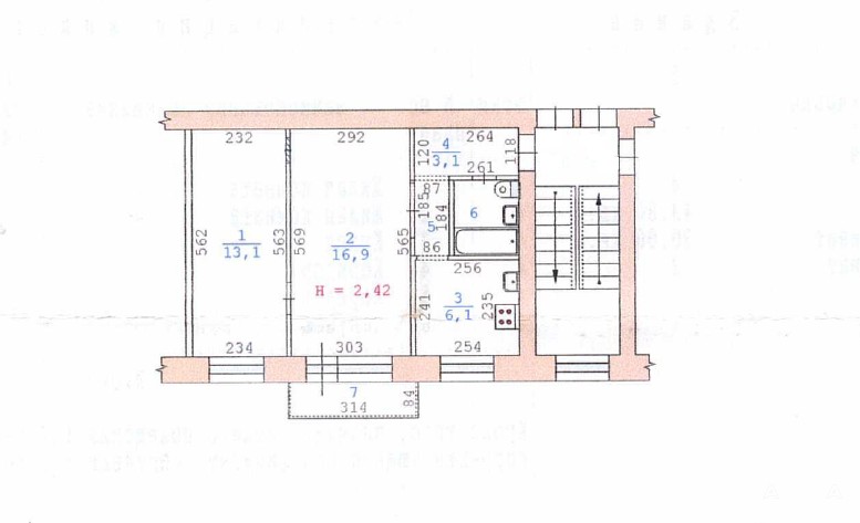
Если Вы хотите стать счастливым обладателем тихой, уютной 2-комнатной квартиры то Вы обратились по правильному адресу. Квартира по адресу Сажинская, дом 1, это именно то, что Вам нужно! Развитая инфраструктура района обеспечивает комфортное проживание современного человека в мегаполисе. Все, что необходимо для удобства в повседневной жизни, найдете в непосредственной близости от дома. Так же, место для автомобиля всегда найдется около дома. Дом находится в глубине от транспортной улицы, окна квартиры выходят во двор, поэтому всегда тихо и спокойно. Дом построен в 1968 году. Квартира расположена на комфортном 4 этаже, общая площадь 43, 8 кв.м, две комнаты по 16, 9 и 13, 1 м.кв. и кухня 6, 1 кв.м. Балкон в квартире застеклен. Квартира очень тихая и теплая, коммунальные платежи невысокие. В шаговой доступности садик №177, школа № 26. Перепланировок нет, обременений нет. Дополнительная информация по телефону. Записывайтесь на просмотр. Показываем по предварительной договоренности.
ID объекта в нашей базе: 935
Дата обновления: 14 октября 2025