Продажа 1-комнатной квартиры

Свердловская область, Екатеринбург, улица Архитектора Белянкина, 34

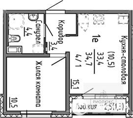
35 м²
Площадь
19.6 м²
Жилая площадь
15.1 м²
Площадь кухни
3/25
Этаж

4 337 000 ₽

124 986 ₽ за м²

ID объявления 12743478

Поделиться

Добавить в избранное

id:50113.
ПРОДАЕТСЯ 
Однокомнатная квартира в Академическом микрорайоне.
Квартира расположена на 3-м этаже 25-этажного здания.

дом стандарт-класса
фото отделки представлены для примера

Чистовая отделка


Пол: ламинат; санузел — керамическая плитка
Стены: оклейка обоями под покраску; санузел — покраска водостойкой водно-дисперсионной краской светлых тонов
Потолок: покраска водно-дисперсионной краской белого цвета
Электрика: электрический полотенцесушитель
Сантехника: унитаз, умывальник со смесителем, радиаторы отопления с терморегулятором и прибором учета
Прочее: межкомнатные двери МДФ ламинированные; входные металлические сейф-двери


Инфраструктура: в шаговой доступности
- Юго-западный лесопарк
- супермаркет "Лента"
- Дворец Дзюдо
- Школы 31, 25, 16, 19
- Удобный выезд на ЕКАД

Звоните!

Дата обновления: 25 апреля 2026