Продажа помещения свободного назначения

Россия, Свердловская область, муниципальное образование Екатеринбург, Екатеринбург, жилой район Сортировочный, микрорайон Старая Сортировка, ЖК Квартал Депо,

14 000 000 ₽

204 380 ₽ за м²

69 м²
Площадь
1/11
Этаж

Поделиться

Добавить в избранное



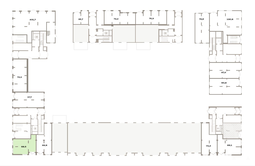
Продается коммерческое помещение площадью 68.5 м² на первом этаже нового жилого комплекса «Депо» в центре города. Объект приобретается напрямую от застройщика, без дополнительных комиссий.

Ключевым преимуществом является прямое уличное расположение с отдельной входной группой и готовым местом под вывеску, что обеспечивает максимальную видимость и легкую доступность для клиентов.

Помещение обладает высоким потолком выше 3-х метров и панорамным остеклением. Внутренняя отделка включает цементно-песчаную стяжку пола и подведенные инженерные коммуникации: водоотведение, канализацию, электричество, радиаторы отопления, приборы учета и отдельный вентиляционный канал, что позволяет быстро адаптировать пространство под любые бизнес-задачи.

Комплекс «Депо» представляет собой современный квартал из семи жилых домов с развитой инфраструктурой.

Высокая проходимость в сочетании с растущим резидентным потоком жителей комплекса создает идеальные условия для размещения розничного магазина, офиса предоставления услуг, кофейни или другого формата бизнеса.
Код пользователя: 1245801958
Номер в базе: 9823006

Дата обновления: 25 февраля 2026