150 000 ₽/мес

1 112 ₽ за м²/мес.

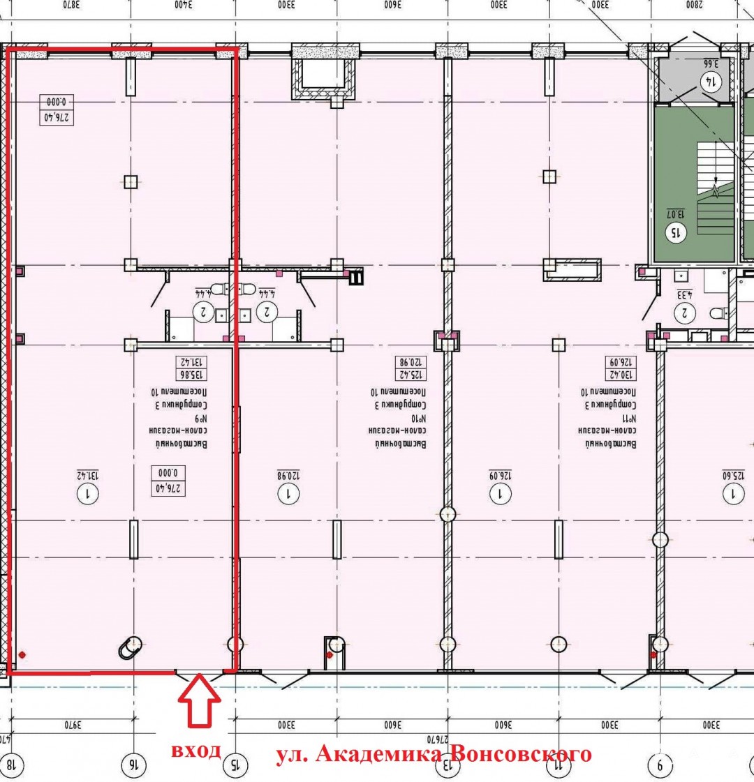
135 м²
Площадь
1/22
Этаж

Поделиться

Добавить в избранное

Первый этаж, первая линия, отдельный вход, возможность размещения рекламы на фасаде, большие окна, активно развивающийся район, рядом остановка общественного транспорта
Район густонаселенный, дома от 9 до 25 этажей, Соседи - федеральные торговые сети "Магнит" "Бристоль" "Пятерочка" "ЖизньМарт". ПАРКОВКА на 15 м/м. Потолки 3, 5 метра. Ремонт – полностью готов для работы без дополнительных вложений.

ЛОКАЦИЯ:
Отдельный вход с ул. Академика Вонсовского
Соседи: ТС Бристоль, Пяторчка, Магнит, Жизнь Март, Аптека Вита
Остановки транспорта « ЖК Балтийский »
Плотность населения высокая
Активный автомобильный и пешеходный трафик

ХАРАКТЕРИСТИКА:
Возможность размещения рекламы на фасаде
Наземная парковка 15 м/мест
Электрическая мощность 15 кВт
Планировка свободная
Остекление витражное
Потолки высотой 3, 5 м.
Система кондиционирования
Охранно-пожарная сигнализация
Видеонаблюдение
Санузел

ОТДЕЛКА:
Пол – керамогранит
Стены – обод под покрас
Потолок – армстронг1

ДОПОЛНИТЕЛЬНЫЕ ВОЗМОЖНОСТИ:
Возможна аренда частями от 70 до 135
Предоставляем арендные каникулы на период подготовки помещения.
Помещение универсальное, подойдет для торговли, офиса, услуг
Прямой договор с собственником!
Без комиссии!
Арт. 126461325

Дата обновления: 25 ноября 2025

Помещение Торгово-офисное