Аренда складского помещения

Свердловская область, Екатеринбург г., Студенческая ул., 1, к в

455 000 ₽/мес

700 ₽ за м²/мес.

650 м²
Площадь
2/4
Этаж

Поделиться

Добавить в избранное

Арт. 119435722
Первая линия Плотная застройка Зона разгрузки Подъемный механизм на второй этаж до 1т

ЛОКАЦИЯ:
Офис расположен в бизнес центре _________ - современный бизнес центр класса ____ .
Деловой центр города с высокой транспортной доступностью
Инфраструктура: 2 кафе, ресторан, кафетерии, банки и тд.
Остановка общественного транспорта « __ »
Наземная/подземная парковка ___ м/мест

ХАРАКТЕРИСТИКА:
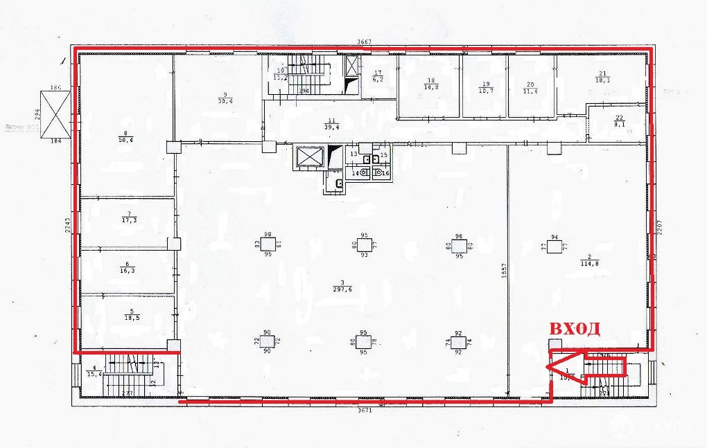
Общая площадь 650 м2
Площадь кабинетов от 12 м2 до 150 м2
Этаж 2/4
Планировка смешанная
Остекление стандартное
Окна выходят на Студенческую
Потолки высотой 3, 5 м.
Приточно-вытяжная вентиляция
Система кондиционирования
Охранно-пожарная сигнализация
Видеонаблюдение
Грузовой подъемник
Санузел

ДОПОЛНИТЕЛЬНЫЕ ВОЗМОЖНОСТИ:
Помещение универсальное, подойдет как для офиса, так и для услуг.
Возможна перепланировка.
Прямой договор с собственником!
Без комиссии!

Дата обновления: 9 октября 2025

Помещение Офисно-складское