Продажа дома

Россия, Свердловская область, Белоярский муниципальный округ, село Колюткино, улица Михаила Скобелева

88 м²
Площадь
1
Этажность
8 сот
Площадь участка

7 000 000 ₽

79 366 ₽ за м²

ID объявления 11937818

Поделиться

Добавить в избранное



ПРОДАМ дом в с.Калюткино, го Белоярский, Тюменский тракт.
В Колюткино шикарные места , сосновый лес, река Исеть, 2 чистейших мраморных карьера, выходы скал.
В 10 минутах на авто магазин "Пятерочка", в селе есть действующий православный храм.
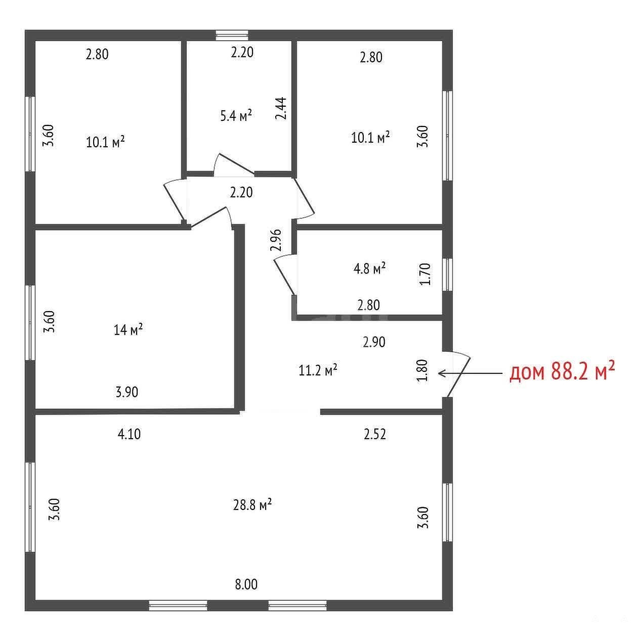
ОДНО этажный дом постройки 2024 года, отделка "под ключ", площадь 88, 1 кв.м., 3 комнаты 10.1, 10.1, 14 кв.м., кухня гостиная 28, 8 кв.м, санузел, котельная.
Земельный участок 8 соток земли населенных пунктов, ИЖС.
Дом из пеноблока с минеральным утеплителем, качественные отделочные материалы, отопление-теплые полы, электрокотел ZOTA, мощность 6 КВт.
Скважина, септик.
Собственник ИП , документы в порядке.
Возможна семейная, IT ипотека, сельская ипотека.
Помогу одобрить ипотеку!
Код пользователя: 31810
Номер в базе: 9666138

Дата обновления: 18 октября 2025

Дом/Коттедж/Таунхаус/Дуплекс под ИЖС От собственника Ипотека