28 309 200 ₽

155 000 ₽ за м²

183 м²
Площадь
1/16
Этаж

Поделиться

Добавить в избранное

Предлагается в покупку торговое помещение, расположенное по адресу:
г. Верхняя Пышма, ул. Огнеупорщиков, 5Б
 
Характеристики : 
Общая площадь – 182, 64  кв.м
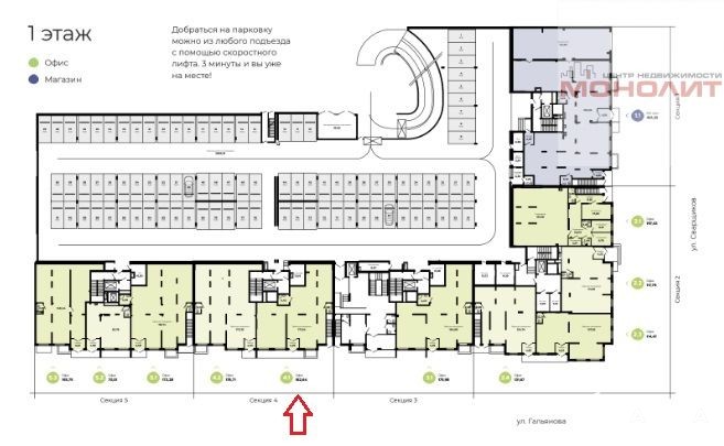
Первый этаж
Первая линия
Отдельный вход.
Без отделки
Срок сдачи - 4 квартал 2027 г.


Инфраструктура:
13-15-16 этажный кирпично-монолитный комфортный дом. Весь первый этаж занимают коммерческие помещения, одно из который спроектировано под продуктовый магазин.
Помещение на первой линии, вход с улицы Гальянова.
Расположен в активно растущем в плане многоэтажной застройки квартале на перекрестке улиц Гальянова/Сварщиков.
Развитая инфраструктура, на фото показано количество магазинов и учреждений вокруг и в шаговой доступности.
Также на фото показан актуальный ход застройки на март 2026 года.

Финансовые условия:
Стоимость продажи за кв.м – 155 000 рублей, за весь объект – 28 309 200 рублей
​​​​​​​Договор долевого участия.
​​​​​​​Есть рассрочка. 

Без комиссии с покупателя! 
Звоните, мы обязательно договоримся!

 



Номер объекта: #5/546786/43

Дата обновления: 26 марта 2026