- 221 м²
- Площадь
- 0 м²
- Жилая площадь
- 0 м²
- Площадь кухни
- 2
- Этажность
- 5 сот
- Площадь участка
26 500 000 ₽
119 910 ₽ за м²
ID объявления 12301165
Поделиться
Добавить в избранное
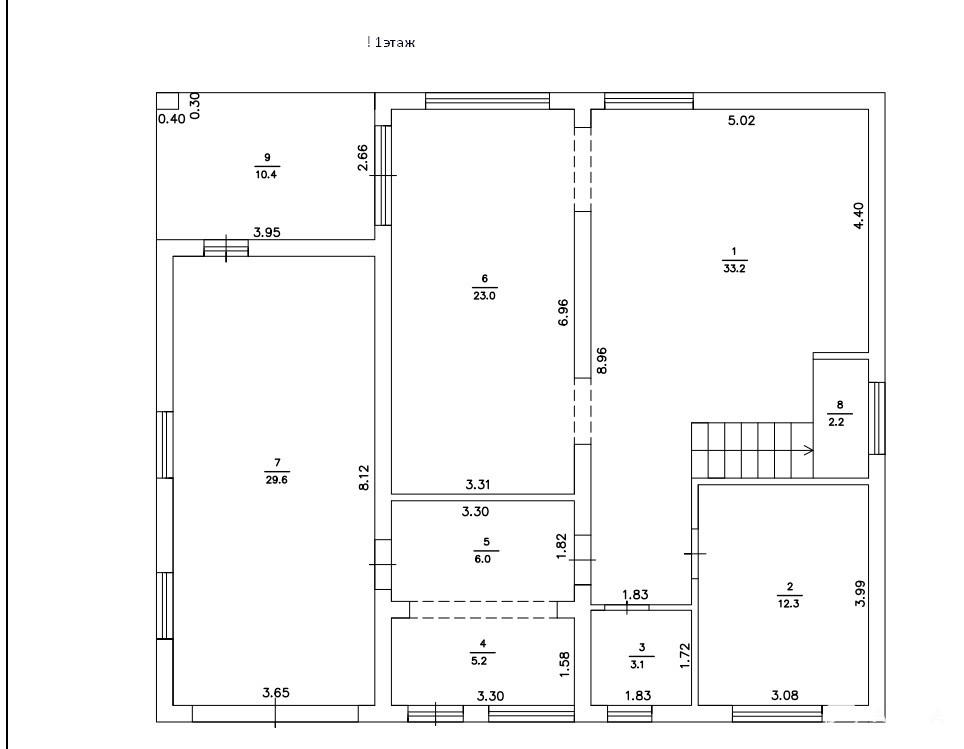
Продам ноый коттедж в хорошем районе. 2 этажа 221 кв. м .Материал стен -газоблок 300 + фасад утеплитель 100 , перекрытие -жб плиты, крыша-металочерепица. В коттедже 5 комнат +большая кухня гостинная , 2 санузла , гараж . Коммуникаци все централизованы , отделка под чистовую .Все рядом - магазины , садики , школы , ДИВС , Бассейн, Парк , Музей , остановки общественого транспорта . Торг.
ID объекта в нашей базе: 766
Дата обновления: 10 декабря 2025