Продажа офисного помещения

39 706 537 ₽

108 845 ₽ за м²

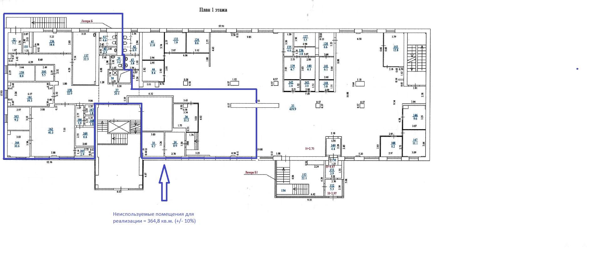
365 м²
Площадь
1/1
Этаж

Поделиться

Добавить в избранное

Код лота: РАД-435985. Реализуется на торгах.
Реализуется через аукцион! Часть нежилого помещения в помещении с кадастровым номером 66: 36: 0103003: 1574, общей площадью 852, 4 кв.м. , этаж 1, расположенном в многоквартирном доме. Общая площадь реализуемого помещения: 364, 8 кв.м. (с допустимым отклонением в площади +/-10%) в соответствии с приложением к настоящему информационному сообщению Наличие обременений: не зарегистрировано. Особые условия: -Банк в течение 9 (Девяти) месяцев с даты подписания договора купли-продажи проводит все необходимые работы по обособлению Объекта. В результате обособления и проведения кадастровых работ допустимо отклонение в площади Объекта в пределах (+/-) 10%. В случае изменения площади Объекта в сторону увеличения стоимость Объекта увеличивается пропорционально площади. При уменьшении площади Объекта стоимость Объекта не меняется. -На Объекте планируется выделить следующие мощности: потребление электроэнергии не более 30 кВт. Подробнее в информационном сообщении. Информационно: Объект передается покупателю без движимого, климатического имущества (кондиционеры) и другого оборудования. Покупатель вправе обратится к ПАО Сбербанк с просьбой о приобретении данного оборудования/движимого имущества. Расчет стоимости оборудования/движимого имущества будет произведен ПАО Сбербанк после обращения покупателя о согласии приобрести данное имущество. После чего, ПАО Сбербанк будет подготовлена Оферта, в которой будет указан состав имущества, технические характеристики и его стоимость. После подтверждения покупателем Оферты ПАО Сбербанк между покупателем и ПАО Сбербанк будет заключен отдельный договор реализации движимого имущества. В случае отсутствия заинтересованности покупателя в приобретении движимого имущества, ПАО Сбербанк в праве демонтировать данное имущество, без проведения работ по восстановлению помещений. Адрес имущества: Свердловская область, г. Верхняя Пышма, проспект. Успенский, д. 125. Возможен вариант предоставления права аренды на данный обьект.
https: //catalog. lot-online. ru/index. php?dispatch=products. view&product_id=1583100

Дата обновления: 22 ноября 2025