Продажа дома
Россия, Свердловская область, Габиевский, квартал Стрижи
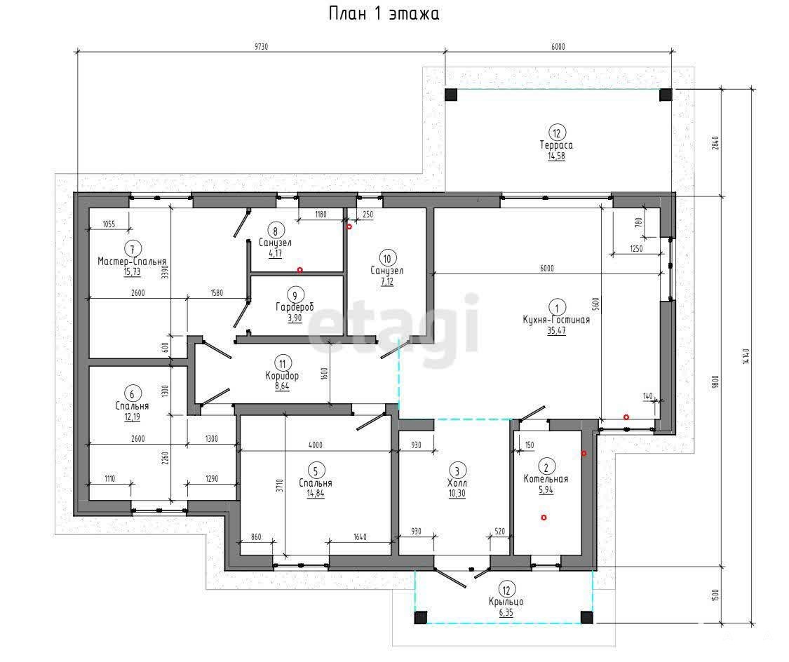
- 133 м²
- Площадь
- 1
- Этажность
- 10 сот
- Площадь участка
19 999 000 ₽
150 369 ₽ за м²
ID объявления 11881397
Поделиться
Добавить в избранное
В продаже прекрасный, большой, светлый, уютный, новый, красивый, шикарный, просторный, отличный загородный дом в КП Заповедник, парк Стрижи!
Коттеджный квартал Стрижи входит в группу посёлков Заповедник и расположен в 50 километрах от центра Екатеринбурга. Путь к нему лежит по Челябинскому тракту. Дорога на автомобиле занимает не более часа езды. На территории КП Стрижи свежо и чисто, благодаря сосновому лесу, который окружает посёлок со всех сторон.
Общая площадь дома 133 кв.м., внутренняя площадь 118 кв. м., с предчистовой отделкой!
Участок 9, 2 сотки ровный, сухой, правильной формы, с лесом!
Дом на стадии строительства - заказаны окна и начинаем фасадные работы, сантехнику и электрику есть возможность выполнить под клиента, с учетом всех пожеланий.
Это одно из лучших предложений на рынке. Успевайте на просмотры!
Код пользователя: 151470
Номер в базе: 9492375
Дата обновления: 18 октября 2025