Аренда торговой площади

Россия, Свердловская область, Режевской муниципальный округ, Реж, улица Большевиков, 9

800 000 ₽/мес

951 ₽ за м²/мес.

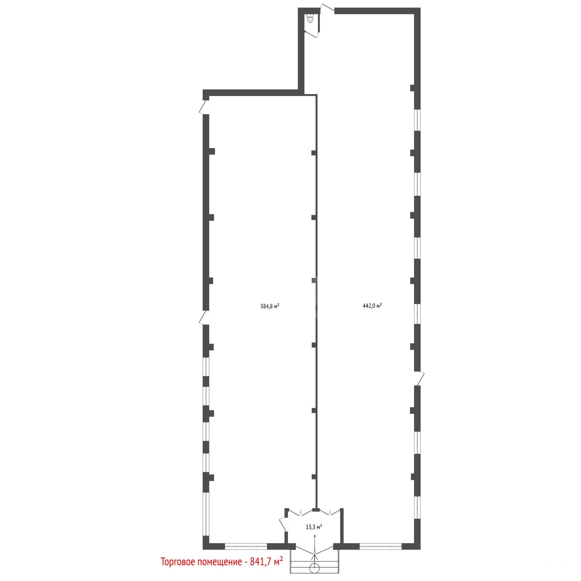
842 м²
Площадь
1/1
Этаж

Поделиться

Добавить в избранное



Сдаю помещение в аренду. Без комиссии для Арендатора. Здание отдельно стоящее, В текущий момент, разделено на 2 помещения 391, 5м2 и 450, 2м2. При желании можно объединить, либо арендовать одно из них. Месторасположение очень удачное, в Центре города Реж. Высокий пешеходный и автомобильный трафик. Помещение подойдет под разные сферы бизнеса, розничная торговля, услуги, общепит. По всем вопросам, и просмотру, пожалуйста позвоните!
Код пользователя: 20123
Номер в базе: 10663598

Дата обновления: 23 декабря 2025