Продажа помещения свободного назначения

Свердловская обл, Калиновское, ул. Ленина,2а

15 450 000 ₽

45 969 ₽ за м²

336 м²
Площадь
2/2
Этаж

Поделиться

Добавить в избранное

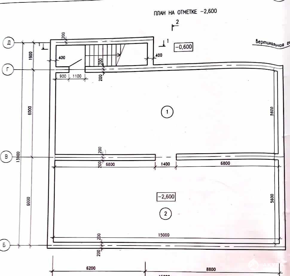
Продаётся двухэтажное коммерческое здание на участке 6 соток в собственности. Объект в долгосрочной аренде, обладает потенциалом для дальнейшей модернизации. Принадлежит одному собственнику, без обременений — готов к быстрой передаче прав. Конструктивно предусмотрена возможность надстройки третьего этажа без значительных работ по фундаменту; крыша оснащена съёмными элементами для удобства ремонта и реконструкции. Фундамент здания выполнен с использованием дорожных плит и блоков ФБС, что гарантирует высокую несущую способность и устойчивость конструкции. Стены здания возведены из газобетонных блоков с дополнительным слоем утеплителя, что обеспечивает энергоэффективность и комфортные условия эксплуатации. Электроснабжение объекта осуществляется от централизованной сети с мощностью 45 кВт, что позволяет удовлетворить потребности как текущих, так и потенциальных арендаторов. Водоснабжение осуществляется посредством скважины, что является надежным и экономически выгодным решением в условиях ограниченного доступа к централизованным источникам воды. Канализация оборудована септической системой, обеспечивающей эффективную очистку и утилизацию сточных вод. Локация с высокой проходимостью и удобным транспортным сообщением, подходит для офисов, торговли, службы доставки, медцентра или других коммерческих проектов. Возможна покупка в ипотеку.
ID объекта в нашей базе: 4678

Дата обновления: 30 октября 2025