Продажа дома
Россия, Свердловская область, Новоалексеевское Яснолетово,
- 125 м²
- Площадь
- 2
- Этажность
- 8 сот
- Площадь участка
13 500 000 ₽
108 000 ₽ за м²
ID объявления 11880781
Поделиться
Добавить в избранное
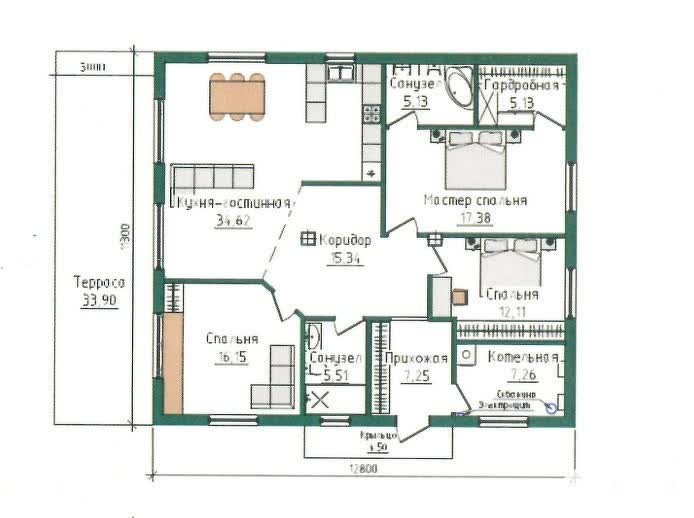
Продаётся уникальный дом с мансардным этажом, в современном стиле со вторым светом. Дом в КП Яснолетово в живописном месте в экологически чистом районе. Комплектация проекта входящая в стоимость: Земельный участок + дом + терраса! Уникальная локация, в 20 минутах от Екатеринбурга. Благоустроенная территория. Асфальтированные дороги. Детские площадки. Видеонаблюдение. Интернет. Школа. Детские сады. ОУ. Развитая инфраструктура села Новоалексеевское. Площадь дома 125, 0 м2. Площадь 2-го этажа: 42 м².Терраса 34, 0 м2. Земельный участок 7, 97 сотки ИЖС. Характеристики дома- на первом этаже 3 спальни, одна из которых имеет собственную ванную и гардеробную, большая и просторная гостинаясовмещеённая с кухней.Котельная и санузел. На втором этаже жилая комната. Это лучшее предложений на рынке. Гарантирую безопасность покупки недвижимости.
Код пользователя: 151470
Номер в базе: 9512914
Дата обновления: 25 февраля 2026