Продажа дома
Россия, Свердловская область, Белоярский Зеленые Кварталы
- 124 м²
- Площадь
- 1
- Этажность
- 7 сот
- Площадь участка
11 500 000 ₽
92 742 ₽ за м²
ID объявления 11883537
Поделиться
Добавить в избранное
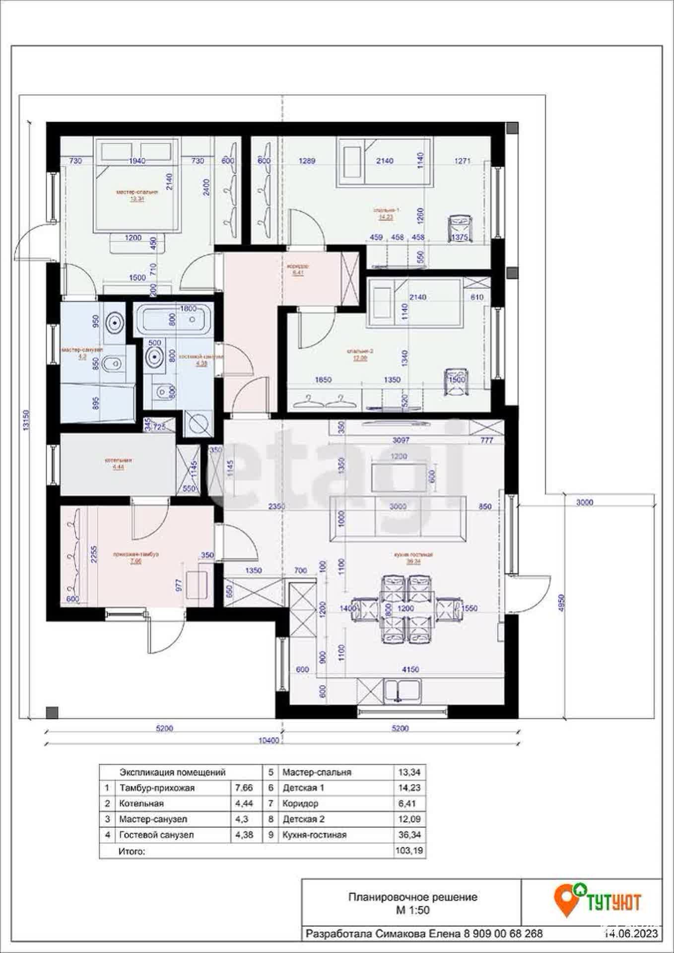
Отделка WHITE BOX. Сельская, семейная ипотека.
Дом 124 кв.м. разделен на две зоны: дневная и ночная. Это делает проживание комфортным в атмосфере приватности
Просторная кухня-гостиная
2 детские комнаты (можно сделать гостевую или кабинет)
Мастер спальня с гардеробной и приватным сан.узлом и собственным выходом во двор
Гостевая ванная комната
Панорамные окна в пол почти во всем доме создают атмосферу единения с природой
Здоровый микроклимат в доме за счет приточной системы вентиляции. Она обеспечивает приток свежего воздуха
Высокие потолки 2.92м
Код пользователя: 149435
Номер в базе: 9358083
Дата обновления: 18 октября 2025